 
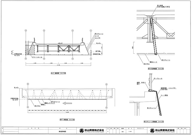
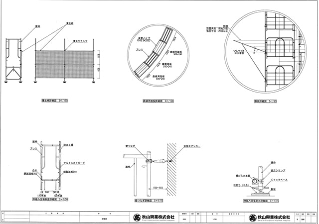
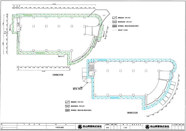
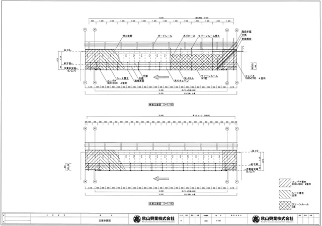
 当社では、安全でスムーズな施工に欠かせない仮設計画図などを専門スタッフが作図しております。
 安全基準は日々高まり、より丈夫で作業性の良い足場が求められます。
 施工も手がける当社だからこそできる、明確な図面作成をいたします。
 
 簡易図面から申請用仮設計画図、躯体図、道路使用図、さらには強度計算書まで幅広く対応しております。
 設計施工まで、すべで当社にお任せください。
 
 
 
 
 
 
| 内容 | 価格 | 備考 | |
| 図面 | 仮設計画図面作成 | ¥29,000~/枚 | |
| 簡易仮設図面作成 | ¥10,000〜/一式 | ||
| 足場の仕様変更、計画変更 | ¥3,500〜/h | ||
| 躯体図作成 | ¥2,000~/h | ||
| 特急料金 | ¥4,000~/枚 | ※5営業日以内 | |
| 強度計算書 | 強度計算書類作成 | ¥1,900〜/枚 | |
| その他 | 道路使用図作成 | ¥10,000-/枚 | ※申請には別途手数料が発生いたします | 
※ 労働基準監督署からの指摘事項につきましては無料で修正致します
図面
| 仮設計画図面作成 | ¥29,000~/枚 | 
|---|---|
| 簡易仮設図面作成 | ¥10,000〜/一式 | 
| 足場の仕様変更、計画変更 | ¥3,500〜/h | 
| 躯体図作成 | ¥2,000~/h | 
| 特急料金 | ¥4,000~/枚 | 
強度計算書
| 強度計算書類作成 | ¥1,900〜/枚 | 
|---|
その他
| 道路使用図作成 | ¥10,000-/枚 | 
|---|
※ 労働基準監督署からの指摘事項につきましては無料で修正致します
 
 
お問い合わせ
ご依頼のお客様は、作業内容、納期などメールまたは電話にてお問合せください。
 
 
資料提出
平面図、立面図、断面図、指示書、(矩計図、詳細図等)をJW、DXFのいずれかにてご提出願います。
図面がない、紙図面のみでも作図可能です。お気軽にご相談ください。(躯体図作成費用が発生)
 
 
打ち合わせ
打ち合わせをご希望のお客様は、日付、時間、場所の確認をさせていただきます。(別途費用)
電話での打ち合わせも可能です。
 
 
図面作成
お客様のご要望に沿って作成いたします。
 
 
納品
依頼品は、PDFにて納品いたします。
 
 
 お問い合わせはお気軽にフォームまたはお電話にて
 ご連絡ください。
 
 
 
 
 
 
 
 
 
 
 
 
 
 
 
 
 
 
 
 
